územní analýza
Každý záměr začíná porozuměním místu. Poskytujeme komplexní analýzu stavební využitelnosti pozemků – ať už se jedná o zamýšlený nákup nebo zhodnocení stávajícího pozemku. Provádíme detailní rozbor všech rozhodujících faktorů, které ovlivňují možnost výstavby: územní plán, regulační omezení, místní stavební předpisy, limity vyplývající z ochranných pásem technické infrastruktury, záplavová území, chráněná území, památkové zóny, geologické a hydrogeologické podmínky, poddolovaná území, dopravní dostupnost, zjištění možnosti dopravního napojení a další aspekty.
Součástí analýzy je prohlídka místa, fotodokumentace, předběžný objemový návrh potenciální zástavby, komunikace s úřady a zpracování přehledného výstupu, který klientovi poskytne jasný rámec možností a rizik. Tento dokument slouží nejen jako podklad pro rozhodování o investici, ale také jako silný základ pro další architektonickou práci. Pomáháme tím klientovi minimalizovat nejistotu a maximalizovat potenciál pozemku ještě před tím, než padne zásadní rozhodnutí.

územní plánování
V našem architektonickém ateliéru se věnujeme návrhům v širším urbanistickém měřítku – od koncepčních úvah nad rozvojem území až po komplexní urbanistické studie a návrhy veřejných prostranství. Dokážeme zpracovat návrh urbanistické struktury, který reaguje na kontext místa, prostorové vztahy a reálné potřeby dané komunity.
architektonický návrh
Architektonický návrh představuje nejdůležitější fázi celého procesu přípravy stavby. V každém projektu usilujeme o vytvoření architektury, která je funkční, prostorově čitelná a konstrukčně promyšlená.
Pracujeme s jasně definovaným architektonickým jazykem, který je postavený na principech moderní a racionální architektury – s důrazem na čisté linie, zdrženlivou materiálovou paletu, čitelné proporce a detailní zpracování. Návrhy vznikají v úzké spolupráci s klientem a dalšími členy projekčního týmu – od specialistů jednotlivých profesí až po odborníky na realizace staveb.
Typologický rozsah naší práce je široký – od rodinných a bytových domů, přes školy, výrobní a logistické objekty, administrativní a občanské stavby až po kulturní a veřejné objekty.

projektová dokumentace
Projekční činnost tvoří nedílnou součást našeho komplexního přístupu k architektuře. Zajišťujeme vypracování všech stupňů projektové dokumentace – od dokumentace pro povolení záměru / stavby, přes dokumentaci pro provádění stavby až po specifické realizační podklady a dokumentaci interiérů.
Naším cílem je vytvářet dokumentaci, která je nejen technicky přesná a legislativně správná, ale zároveň plně respektuje architektonický záměr a usnadňuje jeho realizaci v maximální možné kvalitě. Dokumentace zpracováváme s vysokou mírou podrobnosti, logickou strukturou a důrazem na srozumitelnost pro všechny účastníky výstavby – od investorů po zhotovitele.

bim
Digitální modelování v prostředí BIM (building information modeling) nám umožňuje efektivní koordinaci jednotlivých profesí (statika, elektro, TZB, požárně bezpečnostní řešení apod.), a zároveň přesně definovat a koordinovat stavební a technické prvky již v raných fázích návrhu. Veškeré prvky stavby – konstrukce, instalace a zařízení – jsou propojeny v jednom inteligentním digitálním modelu, který zvyšuje transparentnost projektu a umožňuje identifikovat potenciální kolize a chyby dříve, než dojde k realizaci stavby. Projekty umíme dodat i ve vyžadovaných BIM standardech.

zpracování detailů
Precizně navržený detail je zásadním prvkem kvalitní architektury. Věnujeme mu pozornost již od počátku návrhového procesu – od konstrukčních vazeb až po interiérové prvky.
Detail navrhujeme s ohledem na funkčnost, konstrukční i technologickou proveditelnost, estetickou čistotu a soulad s celkovým konceptem. Zohledňujeme komplexní spektrum parametrů – stavebně-fyzikálních, akustických, požárně bezpečnostních i montážních. Navržené detaily musí obstát jak technicky, tak vizuálně, a podporovat architektonický výraz stavby.

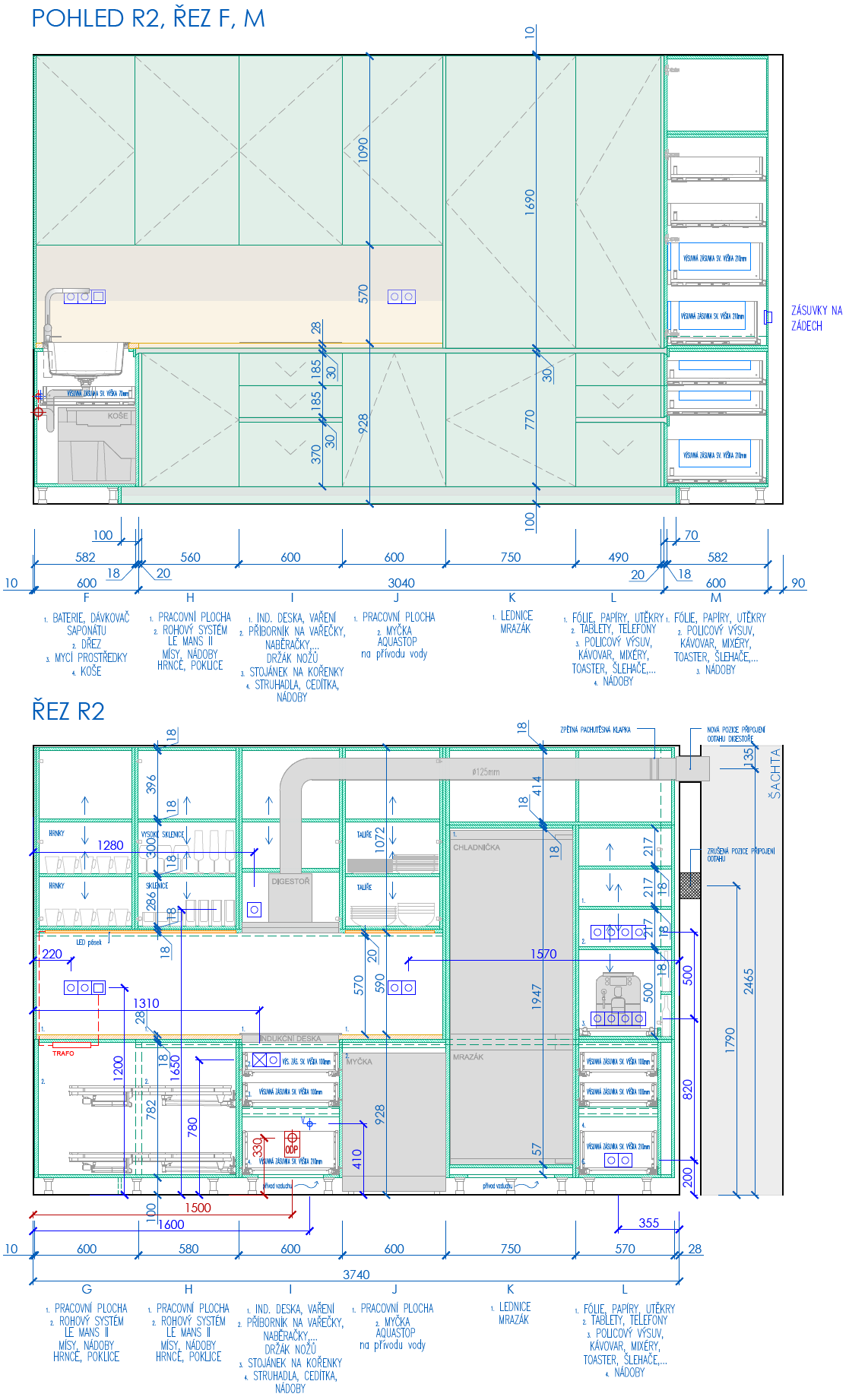
návrh interiéru
Návrh interiéru považujeme jako přirozené a plnohodnotné pokračování architektonického konceptu. Interiér chápeme nikoliv jako samostatnou vrstvu, ale jako součást celkového návrhu stavby – provázanou s její dispozicí, materiálovým řešením, technickými systémy i atmosférou prostoru.
Provádíme detailní výběr povrchových materiálů, návrh atypických i typových interiérových prvků, řešení vestavěného nábytku, osvětlení, technických komponent, audiovizuálních systémů, bezpečnostních prvků, prvků elektroinstalací a podobně. Vytváříme komplexní dokumentaci interiéru včetně katalogů zařizovacích předmětů a movitého nábytku, materiálových vzorníků, technických výkresů, vizualizací a rozpočtových podkladů. Součástí návrhu je také koordinace technických profesí – od umístění vzduchotechnických vyústek přes topné a chladicí prvky až po akustická a světelná řešení.

generální projektant
Nabízíme službu generálního projektanta, tedy hlavního koordinátora všech projekčních činností napříč profesemi. Zajišťujeme zpracování úplné projektové dokumentace včetně veškerých odborných částí, které zastřešujeme, koordinujeme a odpovídáme za jejich technickou a formální správnost.
Profese začleněné do procesu koordinace jsou typicky zahradní architektura a sadové úpravy, statika, technické zařízení budov (vytápění, chlazení, zdravotechnika, vzduchotechnika, elektroinstalace včetně systémů inteligentního řízení a fotovoltaiky), měření a regulace, požárně bezpečnostní řešení, akustika, osvětlení, dopravního řešení, veřejné osvětlení, energetické posudky i další specializované obory.
Cílem této služby je maximálně zjednodušit klientovi proces přípravy stavby a zajistit, aby projekt vznikal jako jeden kompaktní, vzájemně provázaný systém.

dodávka interiéru
Návrh interiérů může být spojen také s komplexní dodávkou jednotlivých částí interiéru – od podlahových a obkladových materiálů, přes koupelnové vybavení, svítidla a závěsy, až po movitý nábytek a elektrospotřebiče. Spolupracujeme s pečlivě vybranými dodavateli, kteří sdílejí náš důraz na kvalitu, přesnost a spolehlivost. Díky tomu jsme schopni zajistit plynulý a kontrolovaný proces realizace interiéru bez zbytečných komplikací.
Klient tak nemusí koordinovat jednotlivé nákupy, komunikaci s dodavateli ani návaznosti mezi řemesly – vše za něj zajišťuje náš tým, který dohlíží na dodržení kvality, termínů i souladu s architektonickým záměrem.

virtuální realita
Virtuální realita rozšiřuje možnosti prezentace a validace návrhu o prostorový zážitek, který nelze nahradit žádným výkresem ani vizualizací. Využíváme technologii virtuální reality k ověřování návrhů ve skutečném měřítku, jak z pohledu architekta, tak klienta.
Díky přímému ponoření do navrženého prostoru je možné včas identifikovat proporční nesoulady, optimalizovat dispoziční vztahy, pracovat s měřítkem a světlem, a především lépe porozumět atmosféře navrhovaného prostředí. Klient ale i architekt tak získává jasnější představu o výsledné podobě stavby ještě před zahájením realizace.
umělá inteligence
Umělá inteligence představuje moderní nástroj, který při správné implementaci výrazně zvyšuje efektivitu architektonické a projekční práce. V našem ateliéru ji cíleně začleňujeme do vybraných fází návrhového a administrativního procesu s důrazem na optimalizaci času, přesnost a podporu rozhodování.
Umělou inteligenci chápeme jako doplněk profesionálního týmu, nikoliv jako jeho náhradu. Jejím cílem není nahrazovat kreativní rozhodnutí, ale zefektivnit podpůrné procesy, které jsou nutné k dosažení kvalitního výsledku. Díky tomuto přístupu získává náš tým více prostoru pro koncepční a autorskou práci, která zůstává klíčovým prvkem naší praxe.
inženýring
V rámci projektů pro povolení stavby / záměru zajišťujeme komplexní inženýrskou činnost, která je nedílnou součástí každé námi navrhované stavby. Tento proces zahrnuje kompletní administraci a komunikaci s dotčenými orgány státní správy, správci dopravní a technické infrastruktury, přípravu a podávání žádostí, vyjádření i stanovisek, včetně samotného podání a úspěšného vyřízení stavebního povolení.
Veškeré připomínky ze strany úřadů a dotčených subjektů řešíme neprodleně – ať už interně, nebo za pomoci renomovaných právních kanceláří a specialistů na dílčí problematiky, jako jsou akustika, oslunění, osvětlení, hluk, požární bezpečnost a další. Díky našemu důslednému přístupu, dlouholetým zkušenostem a pečlivé přípravě má náš inženýrský proces dlouhodobě 100% úspěšnost – všechny naše návrhy a dokumentace vedly k vydání příslušného povolení. I v komplikovaných případech nacházíme cestu, jak projekt obhájit, projednat a prosadit bez kompromisů v kvalitě návrhu.
autorský dozor
Autorský dozor, který vykonáváme na stavbách realizovaných dle našich návrhů. Pravidelně kontrolujeme průběh výstavby, dbáme na přesné provádění podle projektové dokumentace a řešíme detaily přímo na místě.
Díky této přímé účasti jsme schopni pružně reagovat na vzniklé situace, zajistit vysokou kvalitu provedení a zachovat architektonický záměr i v praxi. Výsledná kvalita a soulad stavby s naší vizí je pro nás klíčová a věnujeme jí maximální pozornost.

problemsolving
tendrování
Schopnost řešit problémy považujeme za jednu z našich největších předností a zároveň za klíčový aspekt celého architektonického procesu. Na rozdíl od běžného přístupu se u nás řešení neomezuje na „nejjednodušší cestu“, která by mohla oslabit původní architektonický nebo materiálový záměr. Naopak – i v krizových nebo nepředvídatelných situacích hledáme řešení, která zachovají kvalitu návrhu, jeho estetiku, funkčnost i koncept.
Denně se potkáváme s různými výzvami – od statických a koordinačních problémů, přes změny v časových harmonogramech, dodávkách materiálů, až po komplikované legislativní procesy. Každý takový problém vnímáme jako příležitost, jak projevit odbornost, kreativitu a zodpovědnost vůči klientovi i stavbě samotné. Díky hluboké znalosti projektování, detailnímu přehledu o procesu výstavby a schopnosti týmové spolupráce s dalšími profesemi dokážeme hledat konkrétní, efektivní a smysluplná řešení – bez kompromisů na kvalitě výsledku.
Součástí naší projekční činnosti je také odborná pomoc s výběrem realizačních firem a dodavatelů jednotlivých částí stavby. Pomáháme klientovi orientovat se v nabídce trhu, umíme sami oslovit vhodné stavební firmy, řemeslníky (např. truhláře, podlaháře, kameníky) i specializované dodavatele (např. svítidel, nábytku, technologií), a zajistit kvalitní výběrové řízení (tender). V rámci tohoto procesu vypracováváme poptávky, sbíráme a vyhodnocujeme nabídky a protinabídky, vedeme cenová jednání ve prospěch klienta a zajišťujeme objektivní srovnání jednotlivých možností z hlediska ceny, kvality, technické úrovně a spolehlivosti.
Dodavatelské firmy před zařazením do užšího výběru pečlivě prověřujeme – sledujeme jejich předchozí realizace, reference jiných investorů, navštěvujeme jejich dílny, výrobní prostory i staveniště. Výsledkem tohoto procesu je, že klient obdrží kompletní přehled ověřených a doporučených nabídek, připravených k objednání. Klient si finální objednávku realizace zajišťuje samostatně – na rozdíl od fáze dodávka interiéru, kde zajišťujeme dodávku my přímo. Tímto způsobem však klient získává nezávislý a profesionální pohled na celý realizační proces a může se rozhodovat na základě kvalitních dat a doporučení.


